
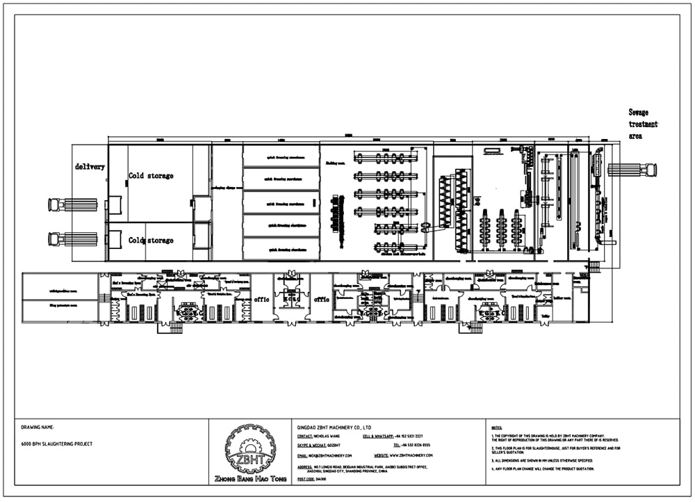
Quotation List For Chicken Slaughter Line With Capacity Of 6000 BPH





Нет. Мы являемся оригинальным производителем линий для убоя животных, оборудования для переработки мяса, систем для обвалки и разделки, запасных частей и т. д.
На нашем заводе имеется 3 линии убоя, в том числе 1 линия убоя крупного рогатого скота, 1 линия убоя овец и 1 линия убоя свиней. На нашем заводе также имеются системы обвалки и разделки, гигиенические инструменты и т. д. Вы также можете увидеть различные конструкции в нашей комнате с образцами линий.
Обычно нам требуется 3 недели для одной машины и 2 месяца для всей производственной линии. Для подтверждения нам необходимо сначала согласовать это с директором по производству. Однако мы изготовим ваши производственные линии в кратчайшие сроки.
Нам потребуется 30% от общей стоимости контракта в качестве аванса, который необходимо перечислить банковским переводом. Остальная сумма будет оплачена до отправки вашей продукции с завода.
У нас есть собственная инспекционная группа на заводе. Они проверяют сырье, полуфабрикаты и готовую продукцию в соответствии с нашими чертежами и стандартами, указанными в коммерческом предложении. Вы получите то, что увидите во время посещения завода, и сможете в любое время проверить свою продукцию в процессе производства.
Да. Мы отправим 1 инженера для сопровождения установки в рамках зарубежного проекта. Как покупатель, вам необходимо будет оплатить авиабилеты в обе стороны, питание и проживание, местный транспорт в месте реализации проекта, а также выплатить надбавку техническому специалисту во время установки.